TÍPUSHÁZAK
Ötletadó házak
Többféle hagyományos ( TÉGLA, VIABLOKK) építésű ötletadó háztípust is bemutatunk, inspirációként. Fontos tudni, hogy ezek nem kizárólagosan csak hagyományos technológiával készülhetnek el – minden terv szabadon átalakítható és megvalósítható akár modern könnyűszerkezetes kivitelben is, és ez fordítva is igaz.
Az építési technológiák szabadon kombinálhatók, így teljes mértékben az Ön igényeihez igazíthatók.
-
MgO típusházaink – 34 db könnyűszerkezetes háztípus közül választhat,
-
Acél–betonyp lapos tetős házaink – 10 egyszintes típust kínálunk,
-
Acél- betonyp emeletes házakat pedig kérésre szívesen megküldünk külön megtekintésre.
-
ISMERJE MEG TÍPUSHÁZAINKAT
Nézzen körül típusházaink között!
A háztervek szabadon alakíthatók – semmi sincs kőbe vésve.
Minden modell tartalmaz előszobát, és igény esetén kamrával vagy háztartási helyiséggel is bővíthető.
TÍPUSHÁZAKNÁL FELTÜNTETETT ÁRAK CSAK A KULCSRAKÉSZ HÁZ ÁRÁT TARTALMAZZÁK.
MIT TARTALMAZ: SÍK TEREPEN VALÓ ALAPOZÁST, SZERKEZETET (FALAKAT, TETŐSZERKEZETET ÉS FEDÉST, KÖNNYŰSZERKEZETES FÖDÉM), ABLAKOKAT, AJTÓKAT, SZIGETELÉSEK, FESTÉST, GIPSZKARTONOZÁST, BURKOLÁSOKAT, SZANITEREKET, LÁMPATESTEKET, GÉPÉSZETI ( fűtés) ÉS ELEKTROMOS MUNKÁKAT, KÖZMŰ BEKÖTÉST AZ ÁR
NEM TARTALMAZZA: ÁFÁT, HŰTÉST, TERASZT, TERVEZÉST, PERGOLÁT, árnyékoló elemeket, egyéb kerti elemeket és díszítő elemeket

Zenit
ZENIT - A CSÚCSPONT ÖNRE VÁR!
Ez a modern, letisztult vonalvezetésű otthon tökéletes választás azok számára, akik a természet közelségét, ugyanakkor a prémium minőségű életteret részesítik előnyben. A ZENIT dizájnját a fény és a tágasság inspirálta, ami garantálja a kényelmet és az otthonosságot minden évszakban. A praktikus elrendezés és a fenntartható megoldások harmóniában egyesítik a kényelmet és az energiahatékonyságot.
AURA
AZ AURA ÖNRE VÁR!
Az AURA típusház igazi oázist teremt a nyugalom és a harmónia kedvelőinek. Nagy üvegfelületei és fedett terasza a természet közvetlen közelségét hozzák be az otthonába. Ideális választás a kikapcsolódást keresők számára, ahol a kert és az otthon határa szinte elmosódik, létrehozva a tökéletes egyensúlyt a szabadtéri és beltéri élet között.


ORION
ORION - ÖNRE VÁR!
A tradíció és a modernitás találkozása! Az Orion típusház ideális azoknak, akik szeretik a klasszikus családi otthon érzetét, ugyanakkor nem szeretnének lemondani a mai építészeti trendek nyújtotta előnyökről. Kifinomult tetőszerkezete és gondosan megtervezett tere kiválóan alkalmas a családi élet mindennapjaira.
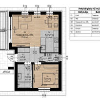
HEGYMAGAS
HEGYMAGAS Típusház – Stílus és kényelem harmóniában
A HEGYMAGAS típusház egyesíti magában az átgondolt, praktikus térszervezést és a minőségi, fenntartható építészeti megoldásokat. 92 m²-es alapterületén két kényelmes hálószoba, tágas étkező-nappali, világos konyha, és jól átgondolt kiszolgálóhelyiségek találhatóak, amelyek ideális életteret biztosítanak pároknak és családoknak egyaránt.
A ház külső megjelenését természetes, natúr téglavörös tetőcserepek, fehér homlokzati vakolat, valamint barna fa- és bádogozású részletek teszik harmonikussá. A praktikus elrendezés mellett a hatalmas hátsó terasz (15,27 m²) és hangulatos előterasz (5,52 m²) kínálnak tökéletes helyszínt a pihenéshez és közösségi élményekhez.
A HEGYMAGAS típusház a minőséget és energiatudatosságot szem előtt tartva, korszerű anyagokból, magas műszaki tartalommal készül, biztosítva az otthon tartósságát és komfortját hosszú évekre.
Tervezz jövőt, válaszd a minőséget és élvezd az életet a HEGYMAGAS típusházban!



.png)











































































